About the
Project
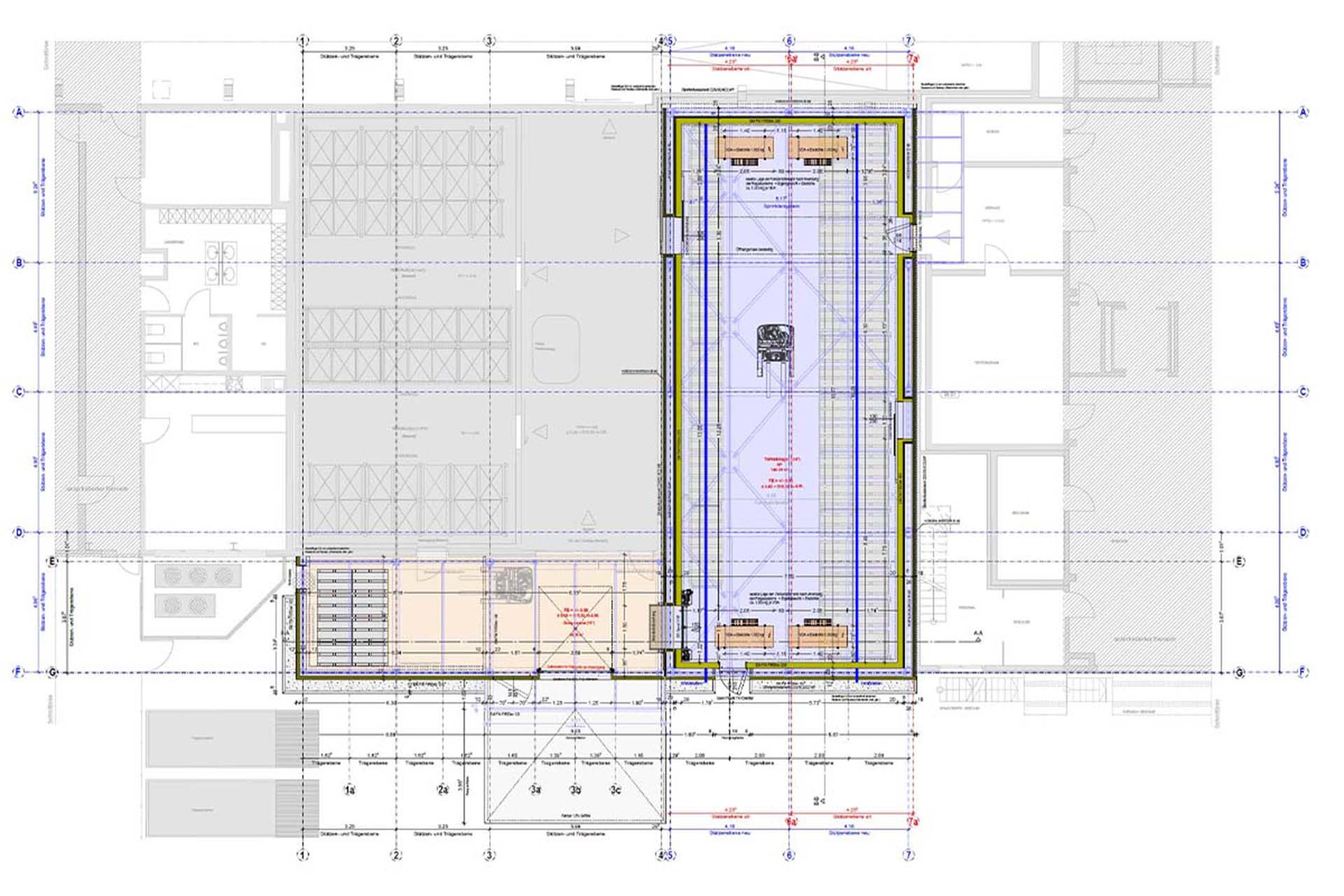
The project is a purpose-built deep-freeze warehouse with a clearly industrial and functional architectural expression.
Its design is consistently driven by operational efficiency, high thermal performance, and optimized logistical processes, resulting in a robust and highly specialized infrastructure building tailored to the demands of temperature-controlled storage.
Its design is consistently driven by operational efficiency, high thermal performance, and optimized logistical processes, resulting in a robust and highly specialized infrastructure building tailored to the demands of temperature-controlled storage.
Info
"Engineered for Cold. Built for Performance."
-
Client
-
LocationEmmenbruecke, Switzerland
-
Project delivery phase2018-2019
-
Scope of WorkArchitecture & Engineering, Project & Construction Management
-
Architectprojectlab.inc
The
Result
The structure is composed of compact, orthogonal volumes, with a prominently tall storage block indicating large internal clear heights suitable for high-bay racking and automated storage systems. The facade is clad in light grey insulated sandwich panels, a standard solution for deep-freeze facilities due to their excellent thermal insulation, airtightness, durability, and hygienic properties.
Architecturally, the building is restrained, robust, and utilitarian, avoiding any decorative elements. This deliberate simplicity reinforces the building’s role as a high-performance infrastructure facility, optimized for continuous operation at extremely low temperatures and seamless integration into industrial logistics environments.
Architecturally, the building is restrained, robust, and utilitarian, avoiding any decorative elements. This deliberate simplicity reinforces the building’s role as a high-performance infrastructure facility, optimized for continuous operation at extremely low temperatures and seamless integration into industrial logistics environments.